熱海モノレール(モノレール熱海〜銀座〜公園前〜熱海港)(未成線)

 
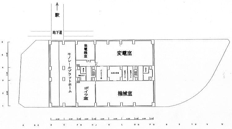
熱海駅前第1ビル地下3階のマップ。プラットホームは地下3階の三島寄りに存在していることが分かる。
(資料提供:熱海駅前第1ビル) 
地下3階の案内版。
モノレールの案内は当然のごとく無い。
事務所とあるが、第1ビル関係者によれば、実際に
事務所がある訳ではなく、このユース設計管理事務
所に設備管理を委託しているため、それが分かるよ
うに載せているとのこと。
階段を地下2階まで下りると、その下に木の板で閉
ざされた小さなドアがあった。
一部では、これがプラットホームへの入口ではないか
と囁かれているが実際は不明。
また、第1ビル関係者でも、これがプラットホームへの
入口なのかどうかは分からないらしい。
第1ビル関係者を含め、一般の人間が行けるのは
地下2階までで、そこは駐車場となっている。
上のマップからしてちょうど写真に写っている床の下
にプラットホームが存在すると推測できる。
しかし、誰もそこへ行くことは出来ない。
行けるのは幻の所有者のみである。


熱海モノレールは、熱海駅前第1ビル地下3階のホームからアタミロープウェイまでを結ぶモノレールのことである。1962年/昭和37年、東海道新幹線が誕生することで、熱海への観光客の増加を見込んで計画される。1963年/昭和38年に鉄道免許を取得。しかし、熱海駅周辺は、温泉源の多い場所で、そうした場所にトンネルを掘ると、温泉源に異常が発生する可能性があることや、熱海港の海は波が高く難工事が予測されるなどの理由で着工には至らず計画は立ち消えとなり、既に熱海駅前第1ビルの地下に用意していたプラットホームもそのままとなってしまった。鉄道免許は、計画中止後もそのまま更新され、1988年/昭和63年までは鉄道要覧にも掲載されていたが、それ以降は削除されている。現在も、熱海駅前第1ビルの地下3階にプラットホームが存在する。しかし、第1ビル関係者によれば、第1ビル関係者とは別にプラットホームの所有者がいるらしく、第1ビル関係者でもプラットホームに入ることは出来ないらしい。また、地下2階まで階段で下りると、更に下の階まで行ける閉ざされた入口があり、一部ではこれがプラットホームの入口ではないかとも言われている。謎だらけの熱海モノレールだが、それが解決されることは所有者にでも合わなければまずありえないだろう。

楽天モバイル[UNLIMITが今なら1円] ECナビでポインと Yahoo 楽天 LINEがデータ消費ゼロで月額500円〜!


無料ホームページ 無料のクレジットカード 海外格安航空券 解約手数料0円【あしたでんき】 海外旅行保険が無料! 海外ホテル